1937年,美國工程師W.J.Assel在俄亥俄洲Wooster市Wayne Co.厚壁鋼管廠對伍斯特爾軋機(Wooster Mill)重新進行了改造設計,他將這種改造設計后的斜軋管機以其名字命名為阿塞爾軋管機(ASSEL Mill)。由于這種斜軋管機采用了三個軋輥,因此一般稱之三輥軋管機,而歐美各國則習慣于稱它為阿塞爾軋管機(ASSEL Mill)。
阿塞爾軋管機(ASSEL Mill)的三個軋輥在機架中呈120度角布置,與長芯棒構成一個相對封閉的環狀孔型。軋輥軸線相對于軋制中心線垂直方向和水平方向均傾斜于一定角度,分別叫喂入角和輾軋角。軋輥形狀呈錐形,中間段有一個凸起叫做輥肩,軋制時與長芯棒完成集中變形,實現較大的壓下量,延伸系數可達2左右。
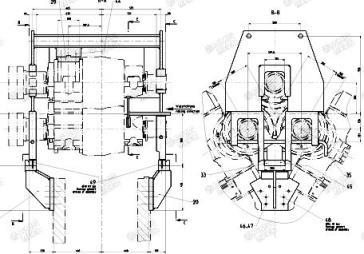
5.3.1 主要工藝設備阿塞爾(ASSEL)軋管機主要包括四部分,即:
5.3.1.1 前臺入口端它包括毛管移送系統,由一個杠桿式移送臂將毛管送入插芯棒位置;
芯棒移送系統,芯棒通過法蘭盤與小車聯接,帶有預旋轉裝置的芯棒小車在底座導軌上水平往返移動,芯棒小車的往返水平移動由雙鏈輪傳動系統驅動;為保證軋制時芯棒移動速度處于控制狀態,由安裝在導軌底座上的兩個液壓缸來限制芯棒小車在軋制過程中的前進速度,芯棒的冷卻由配制在小車上的水管接頭從小車尾部插入芯棒進行內水冷;在芯棒小車導軌中間的芯棒托輥托住芯棒,確保芯棒平穩插入毛管,在芯棒小車前進和后退過程中四個芯棒托輥依次抬起或依次落下,避免與小車相撞。
可調式三輥定心裝置,分布在芯棒移送系統和軋機之間,它的作用一是抱毛管,二是抱芯棒,三是打開接受毛管;
芯棒潤滑系統,在芯棒小車止推器與最末可調式三輥定心裝置之間,在芯棒插入毛管的過程中對芯棒工作帶進行軋制前的潤滑;
升降輸送輥、軋機前調整輥和夾送輥,確保毛管準確送入軋輥;擋管器,它是確保芯棒插入毛管的一個裝置。
5.3.1.2 主機機架,由牌坊底座和旋轉頂蓋組成。


圖5-36 軋輥總成

圖5-37 軋輥調整系統
更換軋輥是,機架上蓋通過兩個液壓缸打開,落在一個撐接支架上,以便三個軋輥通過吊車和換輥裝置進行更換。牌坊底座和旋轉頂蓋在軋制期間由四個液壓夾緊缸鎖緊。三個工作輥安裝在軋機機架上,呈120°布置,按這種方式頂部一個軋輥,底部兩個軋輥。
三個工作軋輥裝配包括帶軸的軋輥,耐磨軸承和兩個軸承箱,裝配后形成一個更換件,該更換件裝入軋輥座內。
軋輥調整裝置保證按照軋制要求調整孔喉和輾軋角,由兩個電動壓下絲杠完成的,它們可單獨操作,也可以同時操作,當兩個壓下絲杠進行反向運動時,可調整軋輥的輾軋角,確定輾軋角后,兩個絲杠同時壓下或抬起可調整軋輥的孔喉尺寸。在兩個壓下絲杠之間,機架內有一個液壓缸與軋輥座連接,它的作用是保持輥箱的穩定,避免壓下絲杠端部與轉轂之間產生間隙,我們稱之為平衡缸。
軋輥座(小轉轂)安裝在轉轂(大轉轂)內,當調整喂入角時,轉轂就由一個主軸傳動系統旋轉到適當角度。每個轉轂都有一個獨立的傳動系統,前進角從0°~12°范圍內無級可調,每個轉轂都有兩個液壓夾緊缸鎖緊。
在上輥出料側的壓下絲杠、軋輥調整裝置和軋輥軸承座之間,安裝了一個液壓快開裝置,它的作用時在軋制快結束時投入工作。它用一個連接環限制行程并滿足運行要求,當活塞向內運動時,軋輥提起,以實現對毛管尾部的無壓下軋制,以此防止毛管尾端形成三角形喇叭口。
整個牌坊機架放置在緊固于基礎上的兩個底板上。
5.3.1.3 后臺出口端
圖5-38

圖5-39
為防止荒管表面劃傷和薄壁管發生表面扭曲現象,在軋機出口處裝有一個輥式導向裝置,它同兩條與軋制方向平行排列的長驅動輥相連,長驅動輥以均勻的轉速導衛厚壁鋼管前進,當軋制結束時,上導輥抬起,兩個下導輥之間的輸送輥抬起,夾送輥壓下,通過輸送輥驅動將荒管送往后面的輸送輥道。長驅動輥底座根據荒管直徑的不同,可整體上下調整中心線。
5.3.1.4 傳動系統;每個軋輥均有獨立的傳動系統,由萬向接軸,減速機和電機組成,軋機采用后臺傳動方式。
5.3.2 主要調整參數基本概念(均以上輥為例)
喂入角:軋輥軸線和軋制線分別在水平面上進行投影,它們的投影線之間的夾角稱為喂入角(feed angle、前進角、送進角、)
輾軋角:軋輥軸線和軋制線分別在垂直平面上進行投影,它們的投影線之間的夾角稱為輾軋角(spread angle)
5.3.2.1 軋輥喉徑和輾軋角的調整Assel軋機的三個工作輥在軋機機架里成120°布置,軋輥安裝在軋輥座上,軋輥座安裝在轉轂里。每個轉轂都由兩個壓下絲杠調整,一個在入口側,一個在出口側,兩個壓下絲杠可分別單獨調整,以得到適合的“軋輥喉徑”和“輾軋角”。
1 輾軋角設定
以軋輥座的底面作為測量表面,當這表面與軋制中心線平行時,輾軋角為零。在機架牌坊的出、入口設有測量點,三個轉轂共有6個測量點,測出的數據存入計算機。
當軋輥座上兩塊止推板到軋制中心距離相等時,輾軋角為5°
2 輾軋角和軋輥喉徑的調整
輾軋角的調整:
輾軋角(β)調整時,軋機出口和入口側的壓下絲杠做反向調整,以出口打開,入口壓下為正調整(輾軋角增加)。
出口絲杠行程=標準行程+軋輥半徑*(1-cos(β-5))+350*tan(β-5)
入口絲杠行程=標準行程—軋輥半徑*(1-cos(β-5))+350*tan(β-5)
軋輥喉徑的調整:
在Assel孔型中安裝測量棒,同時在軋機出口和入口分別安裝測量架。將軋輥座上出口和入口的測量栓與測量架上的測量栓分別對正。此時的輾軋角為5°,測量棒與測量架拆除后,壓下絲杠做同向同步調整就相應的改變軋輥喉徑。
調整后喉徑=原喉徑+2*絲杠調整距離
軋輥中心與軋制中心的距離=(軋輥直徑+軋輥喉徑)/2
當軋輥直徑改變時,需重新在計算機中輸入軋輥直徑,通常情況下,輾軋角和軋輥喉徑的設定和調整通過計算機控制完成。
5.3.2.2 喂入角的設定和調整Assel軋機的軋輥安裝在三個轉轂里,通過對轉轂的旋轉調節,可以得到某一喂入角
軋輥的0°喂入角,對應于軋輥的拆裝位置,軋機的喂入角0~12°可調。
圖中給出的是上輥喂入角的調節方式,在Assel軋機上,上輥(1#輥)和左輥(3#輥)

圖5-40
的喂入角調節行程是一致的,而右輥(2#輥)由于調節裝置安裝方向與前兩個輥相反,因此它的調節行程與另兩個輥不同。
5.3.2.3 Assel軋管機的工作過程1 前臺
穿孔后的毛管通過橫移車移送至Assel軋機前臺,然后由毛管移送臂將毛管送入軋機入口側輥道上,移送臂回到原位。輥道輸送毛管至擋板前,定心輥抱住毛管,停在等待芯棒插入的位置上。
芯棒在輥子的支撐下,由原始位置通過芯棒小車的驅動高速插入毛管中(1.5m/s)。芯棒的工作段在穿過石墨潤滑箱時被噴上石墨潤滑劑。芯棒的支撐輥隨著芯棒小車的前進逐個落下。
芯棒到達插入位置后,擋板升起,夾送輥落下,輸送輥道啟動,毛管和芯棒同步前進。芯棒在到達工作位置之前,由芯棒小車上的帶有超越離合器的輔助驅動裝置進行預旋轉,帶動毛管旋轉進入AsseL軋機的工作輥中。在芯棒到達工作位置之前,芯棒小車與限動梁聯鎖。限動梁開始控制芯棒的前進速度(0.07~0.2m/s),使芯棒的前進速度低于厚壁鋼管的前進速度。隨著毛管被Assel軋輥咬入,入口側輸送輥道全部集體落下至低位。隨著軋制過程中厚壁鋼管不斷地旋轉前進,厚壁鋼管尾部每離開一架三輥定心,該架三輥定心從原來的抱毛管位,變為抱芯棒位。
在軋制結束后,前臺輸送輥升起至托芯棒位,三輥定心集體打開至低位,芯棒小車高速退回原始位置(4m/s),限動梁在液壓缸的帶動下退回原位。在芯棒小車回退過程中,芯棒托輥逐架抬起,托住芯棒。芯棒的工作段通過石墨潤滑箱時被噴上石墨潤滑劑。
2 主機
軋輥在開始咬入前處于低速旋轉,當毛管隨芯棒進入軋輥后開始一次咬入,在此時毛管只在直徑上受到壓縮,隨著厚壁鋼管前進,在軋輥的臺肩開始毛管內表面接觸芯棒表面進行減壁,實現二次咬入。正常咬入后軋輥轉速提高到設定的軋制速度,進行高速軋制。在軋制結束后軋輥轉速降回低速。通常咬入速度是軋制速度的70%
在生產薄壁管時,為防止荒管前端產生喇叭形擴口,在毛管被軋輥咬入前,上軋輥的輥縫預先設定在比正常軋制輥縫稍大的位置,當毛管頭部通過軋輥的臺肩后,上軋輥快速恢復到正常軋制位置,我們把軋輥的這個動作叫做“快關”。
同樣是在軋制薄壁管時,為了防止厚壁鋼管尾部形成三角形而造成的軋卡,在厚壁鋼管尾端通過軋輥臺肩之前,上軋輥的輥縫被打開到一個較大的位置,對厚壁鋼管尾部不減壁,從而避免了尾三角的形成。
通常情況下,當Assel軋后荒管徑壁比(D/S)>12時,采用快開動作,當徑壁比>16時,使用快關動作。
3 后臺
在開始軋制時,由于芯棒端部首先伸出軋機進入后臺,離軋機最近的雙導輥首先托住芯棒端部,隨著荒管從軋機中軋出,雙導輥變換至托荒管位。
在軋制開始時,后臺的長導輥處于高速轉動狀態,它的旋轉方向與軋輥旋轉方向一致,長導輥輥面線速度與荒管的表面線速度保持一致。當荒管進入雙導輥時,導輥的輥面與荒管的表面幾乎不產生滑動摩擦,一方面避免了對荒管表面的劃傷,另一方面由于長導輥幾乎對荒管的旋轉不產生阻力,也避免了荒管的扭轉。
荒管進入長導輥后,首先是兩個連在一起的上導輥從打開位壓下至抱荒管位,隨著荒管的不斷前進,后臺的上導輥逐架由打開位壓下至抱荒管位。
當荒管尾部離開軋機,軋制結束時,長導輥立即從高速轉動降低到一個很低的轉速,在長導輥最前端的兩個連在一起的上導輥此時有一個抱緊荒管的動作,確保在抽芯棒時,荒管不會被芯棒帶回軋機。
芯棒從荒管中抽出后,后臺全部上導輥打開,長導輥中間的輸送輥升起,后臺的夾送輥壓下,共同將荒管輸送出長導輥,在長導輥后的三個固定輸送輥繼續將荒管輸送至定徑前升降輥道。
5.3.2.4 Assel軋機的變形過程Assel軋機的變形區是由三個相同的軋輥和芯棒組成的,三個軋輥同向旋轉。軋機中心線和軋制線一致,從軋制線到三個軋輥的距離相等,一般在生產壁厚較大的厚壁鋼管時采用回退式軋制方式,主要是厚壁管的脫棒間隙較小,不便于抽棒。通常情況下均采用限動軋制方式進行軋制。

圖5-41 Assel軋管變形區橫截面
Assel軋機的變形過程與二輥斜軋延伸機相類似,軋輥輥型也由咬入區(入口錐)、脊部(臺肩)、均整區和出口區組成。

圖5-42
毛管被軋輥一次咬入后,進入入口錐,入口錐角一般約為2.5~3°,由于毛管內徑大于芯棒直徑,首先進行減徑,當直徑上的壓下量等于毛管內徑與芯棒的間隙值(插棒間隙)時,毛管內表面開始接觸芯棒表面,此時一次咬如階段結束。由于輥面臺肩急劇壓下,而厚壁鋼管內壁受到芯棒的限制因此開始減壁,進入二次咬入階段。一次咬入主要是減徑區,該區的主要作用是建立足夠的曳入力,以克服來自軋輥脊部(臺肩)的軸向阻力,實現二次咬入。有時為了實現二次咬入,在入口錐提前減壁。一般在入口錐的壁厚壓下量等于(0.18~0.25)Hs,Hs為臺肩高度。
毛管到達臺肩時,壁厚有較大的壓下量,厚壁鋼管的延伸變形主要集中在臺肩完成。因為厚壁鋼管的內徑保持不便(減壁變形時厚壁鋼管內徑就等于芯棒直徑),這時的壁厚壓下量就等于直徑壓下量的一半。
毛管通過臺肩后進入均整區,均整區的輥面在輾軋角為5°的情況下是與軋制線平行的,因此該區的變形量很小,該區的作用是輾軋壁厚,進行定壁。最后厚壁鋼管經出口錐歸圓軋出。

圖5-43
Assel軋管機在軋制過程中,厚壁鋼管橫截面的變化是從圓到圓三角形,最后再歸圓的過程。
由于變形區不是完全封閉的,有較大的輥縫存在。在軋制進行到厚壁鋼管的尾端時,金屬容易被擠入輥縫而形成尾三角,尾三角會卡在軋輥縫隙中造成后卡。通常采用在軋輥出口設置快開裝置,提前放大軋輥與芯棒的距離,對厚壁鋼管尾部不減壁的方法解決尾三角后卡的問題。采用快開方式在一定程度上解決了Assel軋制薄壁管時的后卡,但是如果軋機快開的控制不準確,往往造成厚壁鋼管尾端增厚段過長,最終造成鋼耗過大。
5.3.2.5 Assel軋管機的液壓快開裝置1 設置快開裝置的目的
在Assel軋管機上輥轉轂的出口側裝有一個液壓快開裝置,它可以在軋制薄壁厚壁鋼管的頭部和尾部時進行動作,避免Assel軋機在軋制薄壁厚壁鋼管時的頭部喇叭口缺陷和尾部三角形缺陷。控制頭部喇叭口的目的是為了給生產線上的下一道工序提供更穩定優質的原料;控制尾部三角的目的是防止軋機本身發生軋卡。
2 快開裝置的動作過程以及控制方法
快開液壓缸的基本位置是滿沖程,即液壓缸伸出最大行程。該裝置的動作分為“快關”和“快開”兩種方式。在該液壓缸內裝有位置檢測元件,可以對液壓缸的動作行程進行設定。
1) “快關”
當采用“快關”方式進行動作時,在軋機開始軋制前,液壓缸回收一定的行程,由于該液壓缸的上部頂住了軋機上輥出口側的壓下絲杠,下部頂住上軋輥座的出口側,它回收了一定的行程,而軋輥座的入口仍保持在原壓下位置,上軋輥座在上輥平衡液壓缸的拉動下,帶著上軋輥,以軋輥座入口的固定點為旋轉中心,向上旋轉一定的角度。
由于軋輥向上抬起,造成輥面與芯棒之間的距離加大,當毛管頭部在此處通過時,可以減少軋輥對毛管壁厚的壓下,由于壁厚壓下量的減小從而減小了厚壁鋼管的橫變形,因此可

圖5-44
以減輕甚至消除Assel軋制薄壁管生產時的喇叭口現象。在毛管頭部通過軋輥臺肩后,為了保證厚壁鋼管管體的壁厚精度,上軋輥需要迅速恢復正常軋制位置,快開液壓缸應立即恢復滿行程的工作位置。但是由于此時的軋輥壓下正處于厚壁鋼管軋制過程中,屬于帶鋼壓下,需要的壓力很大,同時壓下動作要求在極短的時間內完成(約0.3秒)。為此在原有的快開液壓缸外設置了一個增壓缸來保證“快關”動作的及時和準確。
2) “快關”動作的局限性
由于“快關”動作需要在毛管咬入前打開軋輥距離,但是為了保證毛管順利進行一次咬入,軋輥距離不能打開過大(如果快關動作打開的軋輥距離過大,會造成軋機入口的輥距增大,將難以實現毛管的一次咬如)。因此“快關”動作對毛管頭部減壁量的影響是有限的,最終對薄壁管喇叭口缺陷的改善能力也受到限制。
為了彌補“快關”動作消除薄壁管頭部喇叭口能力上的不足,Meer公司推薦使用階梯芯棒配合“快關”動作共同完成對“喇叭口”的消除。

圖5-46 集中換輥吊運裝置

圖5-47
2 軋輥設計
首先根據產品規格和軋制表計算軋輥入口和出口的開口度。
入口:ΔE=LE1*tana1+HS
出口:ΔA=R1(1-cosa2)+LA1*tana2
ΔE≥Δe ,Δe=CH/2+(SH-SL);
ΔA≥Δa ,Δa= CL/2;
CH=dH-2SH-DM
CL=dL-2SL-DM
ΔE ——軋輥入口的開口度;
Δe ——毛管需要的開口度;
ΔA ——軋輥出口的開口度;
Δa ——荒管需要的開口度;
LE1 ——軋輥入口錐長度;
LA1 ——軋輥出口錐長度;
a1、a2 —— 入口輥面錐角、出口輥面錐角
R1 ——過渡圓弧半徑
dH、 SH、CH ——毛管直徑、毛管壁厚、插棒間隙;
dL 、SL、 CL——荒管直徑、荒管壁厚、脫棒間隙;
DM ——芯棒直徑;
1) 入口側的計算
咬入系數k的定義:
k=LG/dH
LG=ΔeR/tana1
ΔeR= CH/2+(SH- SL)-HS
LG:一次咬入長度
ΔeR:
k值一般應在0.4~0.7之間。
首先選擇軋輥入口錐角a1,a1:2.5°~4°,推薦3°。因咬入條件的限制,小于2.5°或者大于4°時,軋輥很難完成咬入過程。
2) 出口側的計算
首先選擇出口角a2和過渡半徑R1,建議開始時選擇a2=3°和R1=150~200mm
以此計算下列變量:
ΔAR1=R1(1-cosa2);
a2的推薦值為2°~10°
下面可以計算所有毛管所需的出口側長度:
la=R1sina2+(Δa-R1(1-cosa2))/tana2
la——任一荒管所需的出口長度
Δa——荒管所需出口側的開口度。
3) 軋輥臺肩的計算
肩角β為50°,計算肩高Hs和肩長Ls:
Hs=(Rs+rs)(1-cosβ)- rs(1- cosa1)
Ls=(Rs+rs)sinβ- rs*sina1
4) 輾軋段長度的計算
輾軋段長度計算如下:
Lk=U*ηa*π*dL/3*tanγ
U——輾軋系數(1.6~2.2)
ηa——滑移系數(0.75~1.0)
γ——喂入角
免責聲明:本網站(山東聊城晟杰無縫鋼管廠m.ahcom.com.cn)刊載的“5.3 新型Assel軋管機(厚壁鋼管)”等均源于網絡,版權歸原作者所有,且僅代表原作者觀點,本文所載信息僅供參考。轉載僅為學習與交流之目的,如無意中侵犯您的合法權益,請及時聯系刪除。本網站刊登此篇文章并不意味著本站贊同其觀點或證實其內容的真實性,我們不對其科學性、嚴肅性等作任何形式的保證。如果侵犯了您的版權,請盡快聯系我們予以撤銷,謝謝合作!
請查看相關產品 厚壁鋼管,厚壁無縫鋼管,厚壁管,無縫鋼管廠,無縫鋼管廠家